Модульная лестница высота 3240 мм (прямой марш) высота ступени 180 мм
Затрудняетесь с выбором?
Просто укажите параметры и узнайте стоймость лестницы!
Или
Выберите лестницу самостоятельно
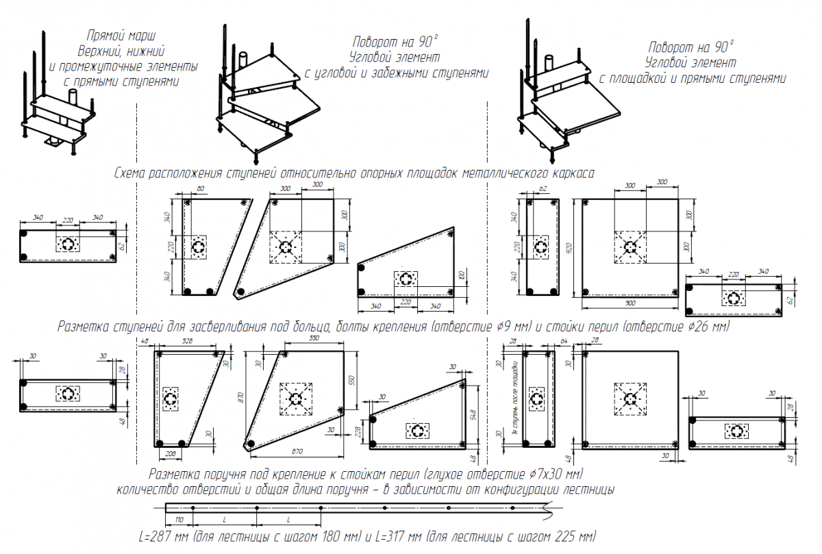
Скачать каталогМодульная лестница (прямая) на больцах высотой 3240 предназначена для эксплуатации в двухуровневых квартирах и коттеджах. Материал: каркас (элементы, пластины, балясины и опоры) — сталь; ступени, поручни — древесина (сосна). Лестница поставляется в упакованном, разобранном виде и собирается на объекте монтажа по указаниям, приведённым в инструкции по сборке лестницы. Количество модульных элементов подбирается исходя из необходимой высоты лестницы. С более подробными правилами сборки можно ознакомиться в разделе "Монтаж лестниц" Для обеспечения комфортного и безопасного использования лестницы, при комплектовании рекомендуется соблюдать правила: во всех модификациях обязательны верхний 1шт. и нижний 1шт. фиксирующий элемент; количество промежуточных элементов определяется из расчета: высота подъема, разделенная на 225 мм (шаг лестницы) минус 2шт.; опоры выбираются в зависимости от высоты подъёма: при высоте подъема менее 1.8 м выбирают маленькую опору (L-1000 mm) , при высоте подъема в более 1.8 м выбирают малую и большую опору (L-1000mm и L-2000mm); количество деревянных ступеней должно быть равным количеству всех установочных элементов; количество малых балясин (L-800mm) должно быть равным количеству больших балясин (L-900mm); количество стоек перил (балясин) при прямой модификации должно быть равным удвоенному количеству ступенек (при стенном опирании) и учетверенному при центральном расположении; при поворотной модификации количество стоек перил (балясин) должно быть равным удвоенному количеству прямых ступенек; количество и длину перил выбирают из расчета высоты подъема, модификации и расположения лестницы.
Вся продукция в нашем Интернет-магазине имеет гарантий срок, установленный производителем, так же все необходимые сертификаты качества и паспорта.
Порядок возврата:
Вы можете вернуть товар в течение четырнадцати дней с момента покупки, если сохранены целостность упаковки, товарный вид, потребительские свойства товара, а также у Вас есть накладная и документ, удостоверяющий личность. Впрочем, если Вы не сохранили документ, подтверждающий факт и условия покупки товара (накладная, счет) – можете сослаться на другие доказательства приобретения товара в нашем магазине.
Вернуть товар надлежащего качества Вы можете:
- в нашем офисе. Приезжайте во время работы менеджера (по будням с 10-00 до 18-00) по адресу г. Екатеринбург ул. Новостроя 1А, офис 102
Мы возместим стоимость возвращенного товара в срок не позднее 10 дней со дня предъявления Вами соответствующего требования.
Исключение - вся продукция с грифом под заказ.

Иванова Светлана
Консультант








